一、招租标的:龙岩京华中心商场,含商铺、多经点位、外广场、广告位,具体为: (一) 拟招租商铺: 楼层 | 铺位号 | 租赁面积(建筑面积) | 2F | JH2001 | 398.12㎡ | JH2007 | 258.09㎡ | JH2017-2 | 133㎡ | JH2018 | 72.00㎡ | JH2019 | 66.42㎡ | JH2022 | 255.84㎡ | JH2025 | 245.08㎡ | JH2026 | 198.95㎡ | JH2027-1 | 86.13㎡ | JH2027-2 | 100.85㎡ | JH2028 | 105.09㎡ | JH2030 | 242.81㎡ | JH2031 | 210.38㎡ | 3F | JH3006 | 97.83㎡ | JH3013 | 39.27㎡ | JH3026 | 137.73㎡ | 4F | JH4010 | 332.74㎡ | JH4011 | 31.68㎡ | JH4015 | 509.89㎡ |
招租对象:中华人民共和国境内外的公司、企业、其他组织和个人,除法律另有规定者外,均可参加竞租。 (二) 拟招租多经点位: 楼层 | 铺位号 | 租赁面积(套内面积) | BF | BF-DJ01 | 98㎡ | BF-DJ02 | 63㎡ | BF-DJ03 | 117㎡ | BF-DJ05 | 22㎡ | 1F | 1F-DJ01 | 24㎡ | 1F-DJ02 | 20㎡ | 1F-DJ03 | 20㎡ | 1F-DJ05 | 2㎡ | 1F-DJ06 | 11㎡ | 1F-DJ12 | 16㎡ | 1F-DJ14 | 15㎡ | 2F | 2F-DJ01 | 10㎡ | 2F-DJ02 | 30㎡ | 2F-DJ05 | 30㎡ | 2F-DJ06 | 30㎡ | 2F-DJ08 | 23㎡ | 2F-DJ09 | 38㎡ | 3F | 3F-DJ01 | 10㎡ | 3F-DJ02 | 30㎡ | 3F-DJ03 | 15㎡ | 4F | 4F-DJ01 | 20㎡ | 4F-DJ02 | 10㎡ |
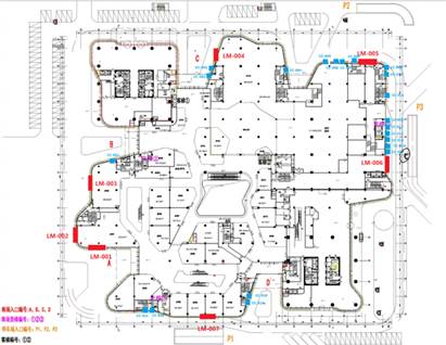
招租对象:中华人民共和国境内外的公司、企业、其他组织和个人,除法律另有规定者外,均可参加竞租 (三) 拟招租广告位(附点位图) 名称 | 位置 | 规格 | 数量 | 外立面幕墙灯箱海报 | 龙岩大道一侧 | LM-002:802*1580 | 1个 | 写字楼北面一侧 | LM-004:838*1580、LM-005:601*1580 | 2个 | 酒店一侧 | LM006:1005*1580 | 1个 | 1F外场橱窗灯箱海报 | 1017边 | 210*510、205*507、205*507、205*507 | 4个 | 靠酒店一侧 | 205*507、205*507、205*480 | 3个 | 内场客梯LED屏幕 | 各客梯口 | 41*60 | 9个 | 内场灯箱广告灯箱软膜 | -2F | 205*255 | 1个 | 1F | 186*324 | 1个 | 2F | 186*292、203.5*117.5、319*305 | 3个 | 3F | 204.5*117.5、337*304 | 2个 | 4F | 135*240、235*117 | 2个 | 精神堡垒灯箱海报 | 龙岩大道一侧 | 148.8*67.8 | 3个 | 西陂路一侧 | 148.8*67.8 | 3个 | 广场灯杆旗 | 广场上 | 45*130 X2 | 1个 |
招租对象:已承租商场内商铺的商户 幕墙LM、橱窗CC广告点位 
-2F广告点位(客梯LED、灯箱DX) 
-1F广告点位(客梯LED、灯箱DX) 
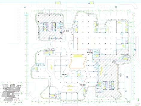
1F广告点位(客梯LED、灯箱DX) 
2F广告点位(客梯LED、灯箱DX) 
3F广告点位(客梯LED、灯箱DX) 
4F广告点位(客梯LED、灯箱DX) 
二、招商咨询联系电话:0597-2176666 意向登记联系电话:0597-2959191 三、报名截止时间:2023年11月15日17:30时 四、报名地址:龙岩市新罗区西陂街道龙岩大道中688号佰翔京华中心写字楼2F 龙岩京华置业有限公司 2023年11月1日
|